MFH Schindlerstrasse, Zürich

Mehrfamilienhaus Schindlerstrasse

 

Direktauftrag, 2017 realisiert

 

Das Mehrfamilienhaus an der Ecke von Schindler- und Pfirsichstrasse ist Teil eines 1910 - 1911 vom Architekten Eduard Hess errichteten Hofrandensembles. Es spiegelt in bescheidenem Ausmass den typischen bürgerlichen Wohlstand seiner Zeit wieder und ist ein städtebaulicher und sozialgeschichtlicher Zeuge.

 

In enger Zusammenarbeit mit der städtischen Denkmalpflege wurden durch gezielte Massnahmen die bestehenden Wohnungen saniert und den heutigen Bedürfnissen angepasst, ohne die Raumstruktur stark zu verändern.

 

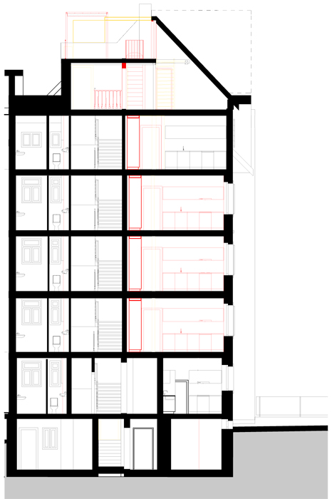
Die bisher über einen kurzen Stichgang erreichbare Küche neben dem Treppenhaus wurde verlegt. Verbunden mit dem Wohnraum ist eine neue, offene Wohnküche entstanden. Kamin und Trennwand zum Wohnzimmer wurden abgebrochen und es ist ein grosszügiger Wohn- Essbereich entstanden. Die originale Raumstruktur bleibt durch den abgewinkelten Abschluss des Korridors mit den Türönungen ablesbar. In der alten Küche ist ein Zimmer entstanden, welches über die Wohnküche erschlossen ist.

 

Die Haustechnikinstallationen wurden erneuert und teilweise neu angeordnet. Dafür konnte auch ein nicht mehr gebrauchter Kaminzug im Korridor verwendet werden. Die Badezimmer sind soweit wie möglich übernommen und ergänzt. Bestehende Farben, Materialien und Oberflächen blieben soweit wie möglich erhalten. Neue Bauteile fügen sich passend dazu ein und helfen mit, den Charakter der Wohnungen zu erhalten.

 

Das Dachgeschoss wurde ausgebaut und neben einem bestehenden Studio ist eine neue, loftartige Dachgeschosswohnung mit Dachterrasse entstanden.